Twój koszyk (0)
Technologia
|
Galeria
|
Opinie
|
Blogi budowlane
|
Współpraca
|
Aktualności
|
Kontakt
Zbuduj z nami dom
Technologia szkieletu drewnianego
Blogowanie
Wykończenie wnętrz
Wyczyść wszystko
Rodzaj budynku
Dom jednorodzinny
Dom dwurodzinny
Garaż wolnostojący
Ilość kondygnacji
Parterowy
Z poddaszem użytkowym
Piętrowy
Powierzchnia podłóg
do 100m
2
od 100m
2
do 120m
2
od 120m
2
do 140m
2
od 140m
2
do 160m
2
od 160m
2
do 200m
2
powyżej 200m
2
Garaż
tak
nie
Pralnia
tak
nie
Spiżarnia
tak
nie
Piwnica
tak
nie
Kominek
tak
nie
Ilość wszystkich pokoi
(wraz z salonem)
2
3
4
5
więcej
Ilość łazienek
(bez toalet)
1
2
więcej
Koszt budowy
(stan pod klucz)
do 250.000 PLN brutto
250-350.000 PLN brutto
350-450.000 PLN brutto
powyżej 450.000 PLN brutto
Strona główna
>
Projekty
>
Projekt: L-92
Projekt:
L-92
Cena projektu:
1.995 PLN brutto
Zobacz
REALIZACJE
tego projektu
Zobacz
OPINIE
o tym projekcie
Zobacz
BLOGI
osób budujących ten projekt
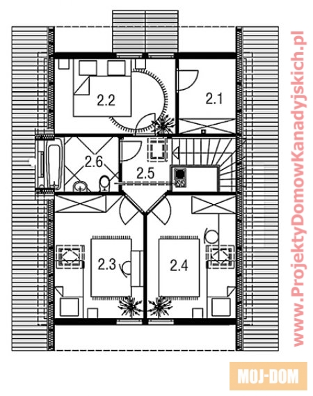
Powierzchnia podłóg
117m
2
Koszt budowy
(pod klucz)
wkrótce
ZOBACZ CO JEST WLICZONE W KOSZTY BUDOWY
▶